Wohnbauten
Büro- und Geschäftsbauten
Öffentliche Bauten
Privathäuser
Sonderbauten
Örtliche Bauaufsicht
Wettbewerbe
Kontakt
Team
Projekte
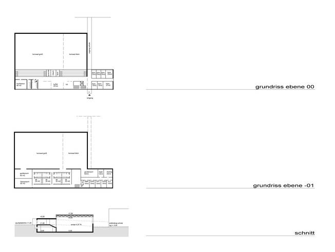
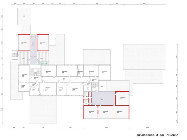
Slowenisches Gynasium - Klagenfurt
Slowenisches Gynasium - Klagenfurt